1493 W Hoot Owl Road  Inkom, Idaho

$619,900   •   Log Home   •   5 bed, 2½ bath   •   3,088 sq ft   •   1.00 acre
Add to FavoritesAdded

Loan Payment

%
years
$
$
 
Advanced  |  Reset

 


Please verify location. A map has been generated based on the address for your convenience, but it has not been verified for accuracy.

 

MLS #582114

Asking Price
$619,900
Status
ACTIVE
Location
Inkom
Style
Log Home
Year Built
1999
Floor Area
3,088 sq ft
Rooms
5 bed, 2½ bath
Garage
2-car under
Acreage
1.00 acres
Days on Market
0 Days

 

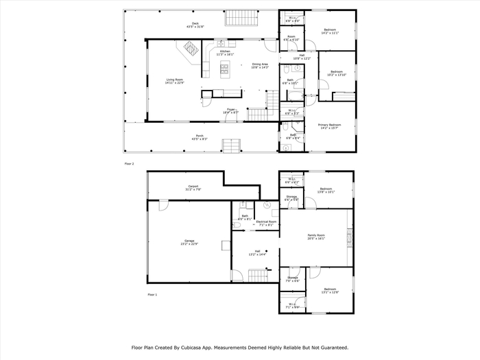
Property Description

This beautiful log home sits on a spacious one-acre lot and offers 5 bedrooms, and 2.5 bathrooms, The master bedroom, complete with its own bathroom, is conveniently located on the main floor. The covered porch provides a perfect place for gathering with family and enjoying some relaxation time. Additionally, there is a fire pit where you can sit and unwind. If you appreciate privacy and the great outdoors, this home is ideal for you. Located just a short drive away is the Pebble Creek Ski Area, Don't miss out on the opportunity to see this remarkable home - call now to schedule your private showing.

 

Property Features

Levels

Main Level
1832 sq. ft.
3 Bedrooms, 2 Bathrooms, Living Room, Kitchen, Fireplace
Basement
1256 sq. ft.
2 Bedrooms, Family Room, Laundry Room, Fireplace

Schools

Elementary School:  Inkom
Middle School:  Marsh Valley
High School:  Marsh Valley

Interior

Interior Features:  Vaulted Ceiling(s), Walk-In Closet(s)
Appliances Included:  Dishwasher, Microwave, Range/Oven, Refrigerator, Water Softener-Owned
Featured Rooms:  Pantry, Primary Bath
Laundry Location:  Basement

Exterior

Exterior Finish:  Other
Exterior Accent:  Stone
Exterior Features:  RV Parking, Shed
Roof:  Architectural
Window Panes: 
Window Frames: 
Patio/Deck:  Covered Deck
Driveway:  Dirt, Gravel

Utilities

Heat Source:  Propane
Heat Type:  Forced Air
Air Conditioning:  None
Electricity Provider:  Idaho Power
Average Electric: 
Avg Non-Electric Heat: 
Avg Water/Sewer/Gas: 

Construction

Year Built:  1999
Builder: 
Construction Status:  Existing
Construction Style:  Log
Foundation:  Concrete
% Basement Finished: 
Basement Features:  Egress Windows, Full Basement
Fixer Upper?  No

Lot

Acreage:  1.00 acres
Lot Dimensions: 
Location:  Low Traffic
Topography/Setting:  Secluded, Wooded
Fence:  Partial
Landscaping:  Established Lawn, Established Tree(s)
Irrigation:  None
Sewer Type:  Private Septic
Subdivision:  None
Parcel: 
Zoning–City:  Residential
Zoning–County:  Residential Rural

Financial

Taxes:  $2,187.00
Homeowner's Exemption: 
Assoc Fee Includes: 
Terms:  Cash, Conventional, FHA, VA
Agent Owned? 

 

Request a Showing

 

Disclaimer

This IDX listing is provided courtesy of ReMax Country Real Estate for personal, non-commercial use only. Information is deemed reliable but is not guaranteed to be accurate.